Grünpflege
Dokumentation
Grünpflege in Habichtswald
Die Mitarbeiter des Bauhofes der Gemeinde Habichtswald mähen jedes Jahr in den Sommermonaten Grünflächen und schneiden im Herbst und Winter Hecken zurück. Zudem kommt die Pflege von zahlreichen Büschen und Bäumen im Innen- und Außenbereich hinzu.
Diese Arbeiten werden vom Bauhof im Rahmen ihrer zugewiesenen Aufgaben regelmäßig durchgeführt. Mit den erschreckenden Meldungen vom Rückgang der Artenvielfalt wächst das Interesse in der Bevölkerung für die Grünpflege öffentlicher Flächen. Diese Arbeiten stehen folglich vermehrt im Fokus der Bürgerinnen und Bürger.
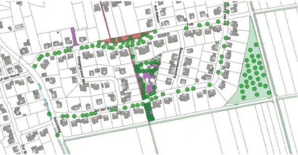
Um einen visuellen und quantifizierbaren Überblick über den Umfang und die Art der regelmäßig durchgeführten Arbeiten zu geben, hat die Gemeindeverwaltung begonnen, die von dem Bauhof durchgeführten Arbeiten mit Hilfe eines Geoinformationssystems zu dokumentieren. Dies erlaubt die lagegenaue Darstellung von Art und Umfang der Arbeiten sowie die Auswertung der Menge der Arbeit.
Die bereitgestellten Karten zeigen einen ersten Arbeitsstand. Noch nicht aufgenommen wurden u.a. die sehr arbeitsintensive Pflege der Rabatten entlang der Kasseler- und Wolfhager Straße und im Bereich vieler öffentlicher Gebäude, die ebenfalls von den Mitarbeitern des Bauhofes ausgeführt wird.
In den Karten ist die durchschnittliche Pflegeintensität angegeben. Die Pflege erfolgt aber tatsächlich bedarfsorientiert, d.h. dass sie z. B. in den letzten Dürrejahren, in Zeiten in denen die Vegetation kaum Zuwachs zeigte, auch weniger häufig durchgeführt wurde.
Kontakt

Kartenausschnitt
Ortsteil Dörnberg
Bereits aus dem momentanen Arbeitsstand lassen sich einige Trends ablesen. Nach bisherigen Dokumentationsstand pflegt die Gemeinde etwa 35 km Hecken. Davon werden insgesamt etwa 5,5 km zumeist innerorts von Hand mit motorisierten Heckenscheren geschnitten.
28 ha Grünflächen werden gemäht oder gemulcht. Dazu zählen sehr intensiv gepflegte Bereiche, wie etwa Spielplätze, der Sportplatz, das Freibad und die Friedhöfe. Diese Flächen werden zumeist mit Rasenmähern gemäht (Ehlen etwa 20% der Grünflächen, Dörnberg 10% der Grünflächen). 2/3 der Flächen, vor allem Wegränder und Gräben werden max. 2-mal jährlich gemulcht. Immer wieder kommen aber auch Schafe zur Beweidung kleinerer Flächen zum Einsatz, um Rasenpflege auf Flächen zum Schutz und der Pflege der Natur durchzuführen. Etwa 206 Büsche werden zumeist jährlich oder innerorts auch oft im halbjährlichen Turnus geschnitten und insgesamt 1.412 Einzelbäume wurden als zu pflegend in die Karten aufgenommen.
Ziel ist es, die Dokumentation der Pflege weiterzuführen, die Pläne, wo nötig noch zu vervollständigen und die Pflege zu vereinheitlichen und sie somit transparent für alle Bürger zu machen. Aber es soll auch der Arbeitsumfang verdeutlicht werden, den die Grünpflege verursacht.
Die Karten bieten eine gute Grundlage zur weiteren Pflegeplanung, in die z.B. auch die Ansätze zum weiteren Arten- und Naturschutz und somit Erhalt der Biodiversität in Habichtswald einfließen können.
